411 Levi Lane, Lafayette, CO

$4,995,000

Previous Next

1.83

Acres

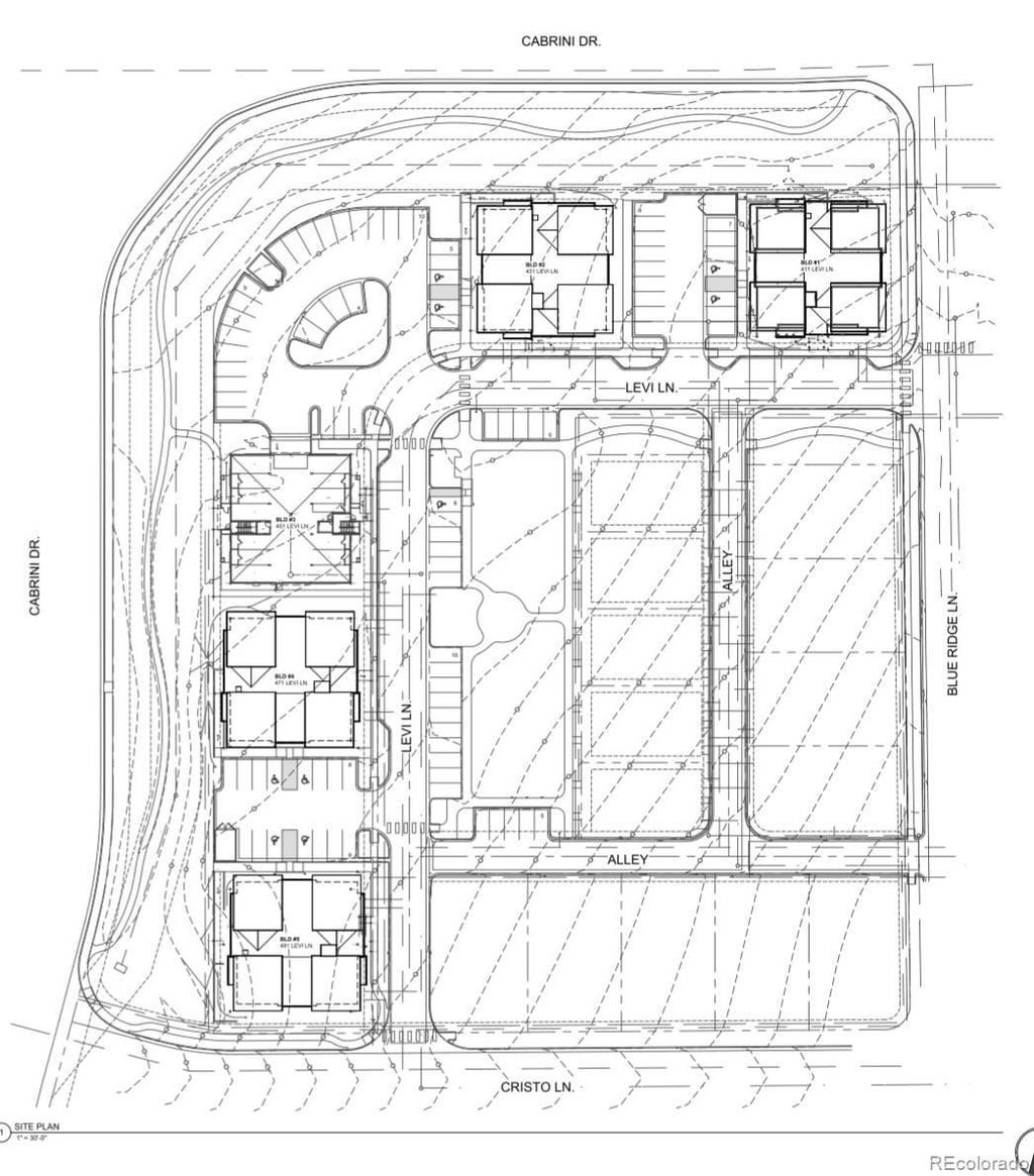
About 411 Levi Lane

This 1.832-acre parcel of land offers a rare opportunity for developers and investors, with entitlements in place for the construction of 56 residential units. The approved plans include four 12-plex buildings and one 8-plex building (entitled for 56 units), all featuring spacious 2-bedroom, 2-bathroom units. This project is designed as a Class A property, complete with elevators for added convenience and luxury. This land is grandfathered into old water rights, offering a significant advantage in terms of resource access and cost-efficiency. All essential infrastructure is already complete , including parking, sidewalks and other key utilities, allowing for a streamlined development process. This prime site is ideal for those looking to capitalize on a well-entitled and fully prepared project, making it an excellent choice for a quick and profitable development.

Features of 411 Levi Lane

MLS® # 6252678
Price $4,995,000
Bathrooms 0.00
Acres 1.83
Type Commercial Sale
Sub-Type Commercial Land
Status Active

Community Information

Address 411 Levi Lane
City Lafayette
County Boulder
State CO
Zip Code 80026

Amenities

Is Waterfront No
Has Pool No

Interior

Fireplace No

Additional Information

Date Listed September 19th, 2025
Zoning PUD
Foreclosure No
Short Sale No
RE / Bank Owned No

Listing Details

OfficeGolden Key Real Estate

Listing Map

Request a Showing

Provide a valid email address.
When would you like to view this property?